Villas
Prix, surfaces et plans
Pour télécharger les plans, cliquez ci-dessous sur le logement souhaité puis sur « Télécharger ».
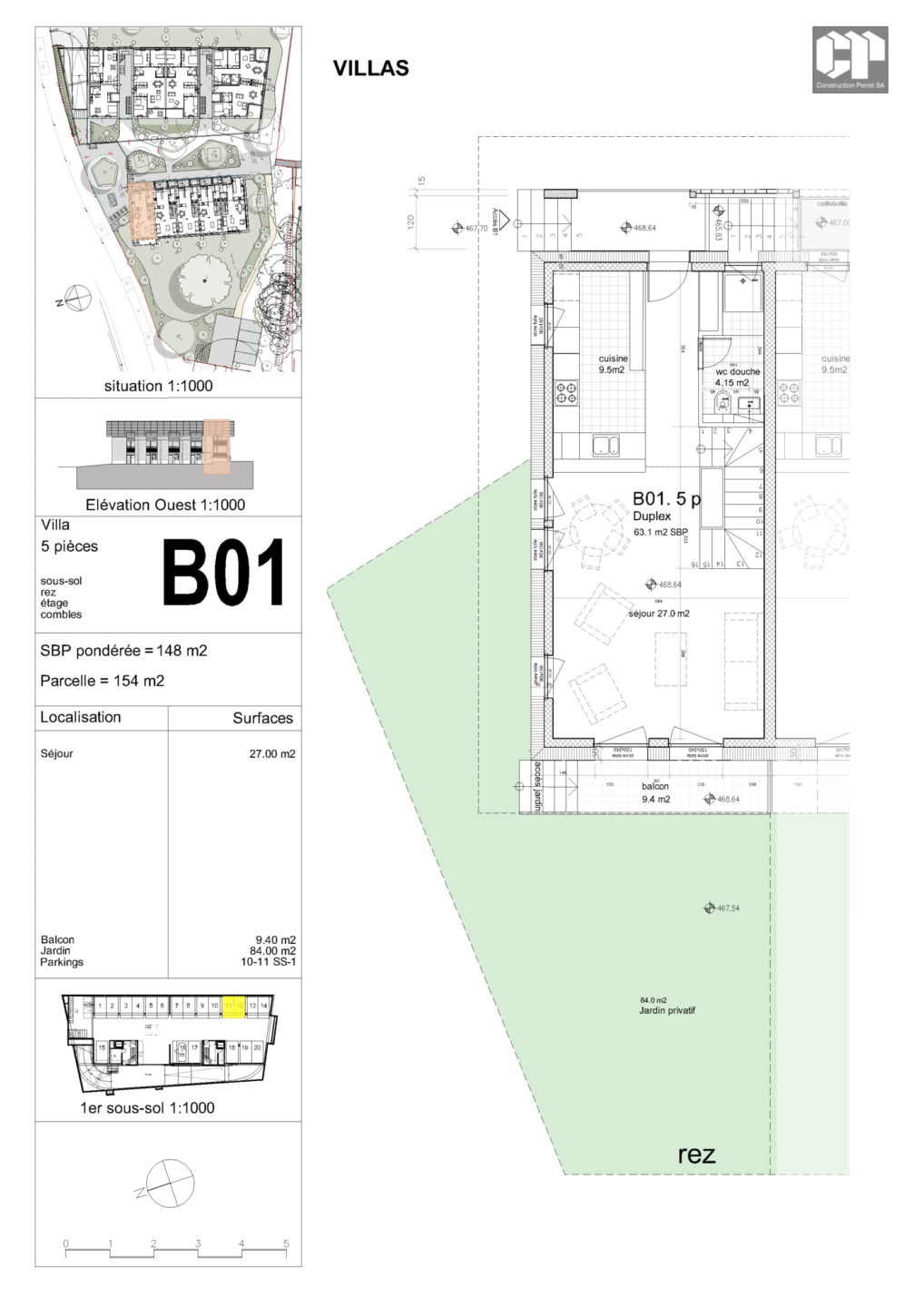
Les villas, toutes traversantes sont baignées d’une douce lumière. En rez-de-jardin, se trouve un superbe séjour avec une cuisine ouverte donnant à l’espace une impression de grandeur supplémentaire. L’accès au jardin se fait grâce à ses grandes baies vitrées laissant entrer le soleil. Vous pourrez y profiter des chaudes journées d’été à l’ombre des arbres. Une salle de douches avec WC complète ce niveau. A l’étage, trois chambres et une salle de bains avec WC forment l’espace nuit. Chaque chambre s’ouvre sur un balcon ou une loggia prolongeant encore le plaisir d’être à l’extérieur.
Les combles non habitables offrent une surface supplémentaire à aménager selon vos envies.
Par ailleurs, la villa B05 reçoit 2 chambres et une salle de bains supplémentaires déjà aménagées dans les combles.
Afin de vous offrir toujours plus d’espace, toutes les villas disposent d’un sous-sol non habitable composé d’une buanderie et d’une spacieuse cave.
Bâtiment B
| Lot | Pièces | Surf. SPB | Surf. sous-sol | Parking | surf. utile | Prix | |||||
|---|---|---|---|---|---|---|---|---|---|---|---|
| B01 | 5 | 126.0 m2 | 37 m2 | 2 | 171 m2 | ||||||
| B02 | 5 | 118.0 m2 | 30 m2 | 2 | 184 m2 | ||||||
| B03 | 5 | 118.0 m2 | 30 m2 | 2 | 184 m2 | ||||||
| B04 | 5 | 118.0 m2 | 30 m2 | 2 | 184 m2 | ||||||
| B05 | 7 | 178.0 m2 | 35 m2 | 1,5 | 235 m2 | ||||||
1 à 2 places de parking en sous-sol sont prévues pour chaque appartement et villa. Elles sont à acquérir en sus du prix de vente (CHF 40’000.- l’unité, CHF 80’000.- les deux).
Places motos CHF 2 000.-
Combles : les surfaces des combles sont non habitables
